restaurang riva, strängnäs hamn,
2011-pågående
YAJ arkitekter projekterar en ny byggnad till restaurangen Riva i Strängnäs hamn. Läs mer nedan.
 


restaurang riva, strängnäs hamn,
2011-pågående
YAJ arkitekter projekterar en ny byggnad till restaurangen Riva i Strängnäs hamn.
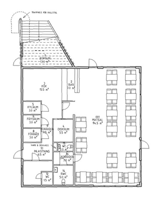
Restaurangen är en vitmålad träbyggnad, som öppnar sig med glaspartier mot kajstråket, gästhamnen och uteserveringen på Västervikstorget. En bred, sittbar trappa leder upp till restaurangens takterrass med bar och lounge-möblemang. En turkosblå glasfront kantar trappa och terrass.
arkitekter Ylva Lindstedt och Jonas Nyberg
beställare Viamare Promarina Management
plats Strängnäs
skede entreprenadupphandling
år 2011-pågående
area 200 kvm
energikonsult Incoord
storkökskonsult Storköksbyrån

|