|

villa N13, STOCKSUND, 2013-pågående
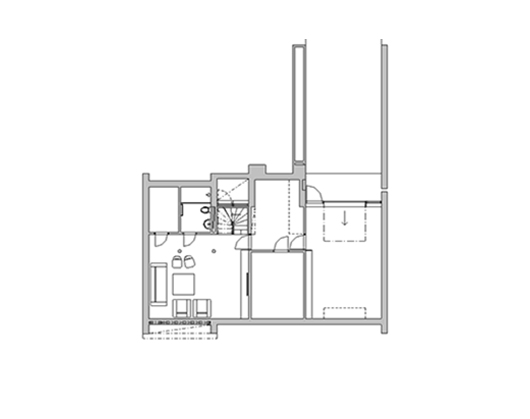
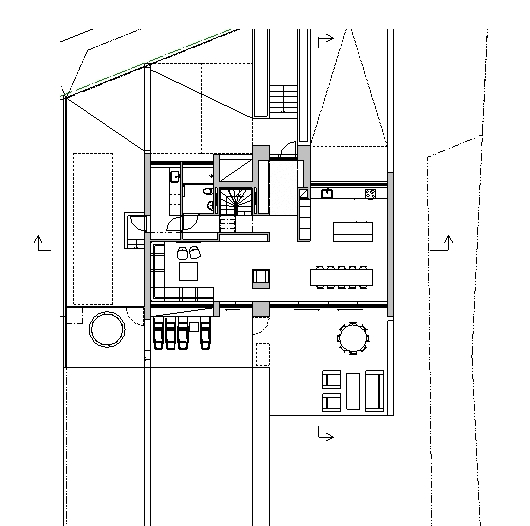
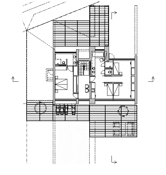
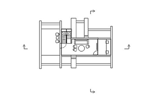
Villa N13 är en ny 3-våningsvilla med pent-house och takterrass i Stocksund. Huset är komponerat av ett antal vertikala, parallella, bärande skivor, som skjuter ut ur byggnadsvolymen. Huset ligger på en södersluttande skafttomt omgiven av skog och naturtomter. Vardagsrum och kök öppnar sig mot södervända terrasser och en pool. Pergola-täckta terrasser bildar mellanzoner mellan invändiga rum och den omgivande vilda naturen.









arkitekter Ylva Lindstedt och Jonas Nyberg
beställare privat
plats Stocksund
skede gestaltningsförslag, bygglovshandling och förfrågningsunderlag
år 2013-pågående
area (BTA) 368,5 kvm
|