english

YAJ arkitekter - Ylva Lindstedt & Jonas Nyberg arkitekter - förstasidan
om YAJ arkitekter
kontakta YAJ arkitekter
Think tank
YAJ i media
 
turism + varumärkesbyggande arkitektur
villor + vindar
vindar på södermalm
villa criss cross

villa kapla
villa marensborg
villa i kuala lumpur
villa n13
villa s13
villa p14
villa k16
villa s41
fritidsboende i åre
villa i täby
fritidshus på aspö
villa i danderyd
fritidshus i båstad
kök i näsby park
villa i gifu, japan
råvindar i enskede
fler projekt
boende stadsplaner




 

 

 

vy terrass

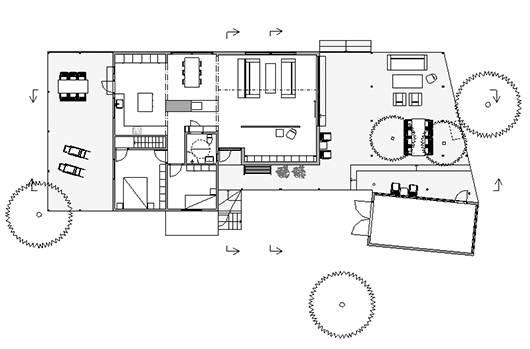
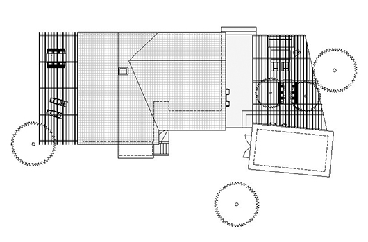
villa s41, ekerö, 2013-pågående

Om- och tillbyggnad av befintlig enplansvilla på Ekerö. Tillbyggnaden omfattar ny entré och vardagsrum med flytande övergångar till utvändiga rum på nya terrasser.



vy entré

vy entréhall och kamin

vy vardagsrum och hall

vy vardagsrum

vy vardagsrum från terrass

vy vardagsrum och hall

plan

takplan

tvärsektion

fasad norr

längdsektion


arkitekter Ylva Lindstedt och Charlotte Fredriksson
beställare privat
plats Ekerö
skede gestaltningsförslag och bygglovshandling
år
2013-pågående
area 118 kvm

situationsplan